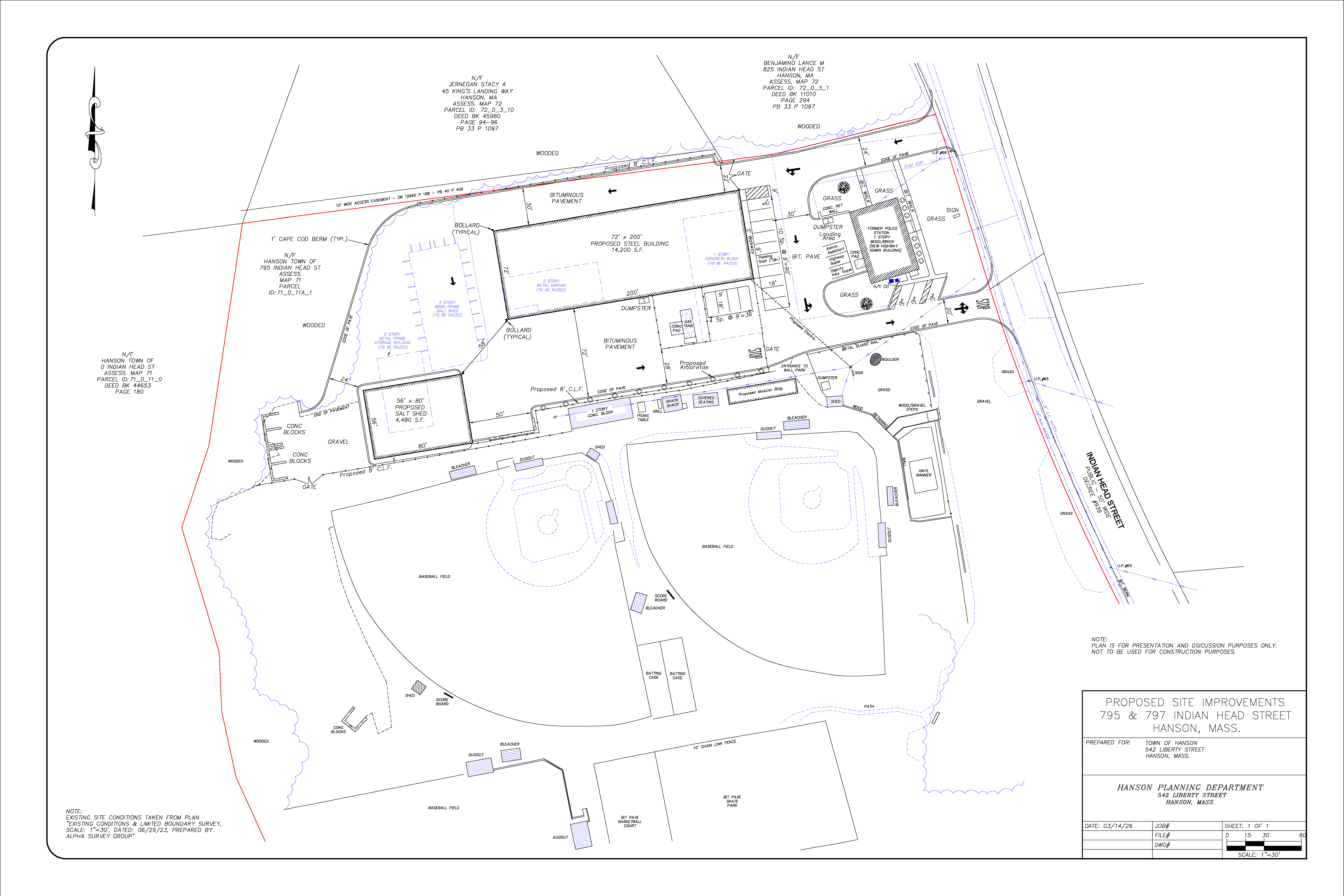
Proposed Site Improvements Plan

Click image to view full size

Former Police Station - Administrative Offices

The former Police station needs renovating and updating to house the Highway Department's administrative offices.

🏢 New Office Space

  • Housing for Highway Director, Foreman, and the Assistant to the Highway Director
  • Dedicated space for files and plans storage
  • Conference room for meetings
  • Emergency center for storm events
  • Better access for the public
  • Office space for I.T. Department and/or facilities maintenance

✅ Benefits

  • Provides more efficient office space
  • Efficient use of underutilized space
  • Reduces new building costs
  • Separates administration from vehicle exhaust and garage operations

Proposed Highway Garage

A new, modern facility designed to meet the needs of today's Highway Department operations.

🏗️ Building Specifications

  • 200' x 72' metal building
  • 14,200 square feet of area
  • Large garage doors for storage of large vehicles and equipment
  • Dedicated space for repair and maintenance of Highway Department vehicles

💪 Key Features

  • Provides safe and hygienic working conditions for employees to comply with OSHA rules and regulations
  • Adequate space to store all department vehicles
  • Protected storage for expensive equipment
  • Modern maintenance and repair facilities

Proposed Salt Shed

Replacing the aging salt shed with a new structure for more efficient winter operations.

🏗️ New Salt Shed

  • Existing salt shed would be demolished
  • Replaced with a new 56' x 80' salt shed
  • To be relocated to the rear of the site
  • Oriented in an east/west direction
  • Allows for easier access for loading of vehicles during storm events

Proposed Site Improvements

Comprehensive site improvements will enhance safety, efficiency, and environmental compliance.

🚧 Site Layout

Improved traffic flow and organization for better operational efficiency and safety during all weather conditions.

💧 Stormwater Management

New stormwater treatment systems will be implemented to meet current environmental standards and protect local water quality.

🚗 Parking & Access

Enhanced parking areas and improved access for both department vehicles and public visitors.

⚡ Infrastructure

Updated utilities, lighting, and drainage systems to support modern operations and improve energy efficiency to comply with all current codes rules & regulations.

Project Summary

📍 Central Location

Current site is located within the geographical center of the town and is approximately two miles from any of the town's borders, allowing for quick response times to emergency and storm situations.

💼 Improved Administration

Relocation of highway personnel to the larger office space of the former Police station will improve administration capabilities and public interaction.

🚛 Equipment Protection

The construction of a new garage/shop would allow for vital storage of expensive equipment and vehicles which are currently stored outside exposed to all weather elements.

💰 Long-term Value

The proposed new construction would vastly improve the site for many years while minimizing costs to the taxpayers.

Project Timeline

1

Project Approval - Two-Step Process

  • Warrant is presented at town meeting for community consideration.
  • Question is put on the ballot for the May Town Elections
2

Design and Permitting

  • Conduct bidding process for project manager
  • Complete engineering and design plans and obtain necessary permits
  • Conduct bidding for construction
3

New Building Construction

Complete facility construction while maintaining operations

4

Project Completion

Modern facility ready to serve Hanson for decades.

Proposed $7.5 Million Highway Facility Impact

Why the Tax Impact is Minimal

💰 Debt Service Breakdown

  • Existing Debt Service (Expires FY2027): $465,000 / year
  • New DPW Debt Service (Estimated): $525,000 / year
  • Net Increase: Only ~$60,000 / year

🏠 Estimated Tax Impact on the Average Home

Average Home Value: $600,000

Estimated Annual Impact: $10–$20 per year

For a $600,000 home that comes out to approximately $1 per month

✅ Existing Debt Will Be Paid Off in FY2027

Current debt obligations are set to expire, creating room for new infrastructure investment.

✅ New Debt Replaces Old Debt Service

Strategic timing means the new project debt takes the place of expiring debt obligations.

✅ Minimal Increase for Taxpayers!

By replacing rather than adding to existing debt, the impact on taxpayers remains minimal.

Information based on current estimates. Final amounts may vary.

Questions & Answers

Why do we need this project?

Our current facilities are outdated and deteriorating. Buildings from 1938, 1964, and 1983 are no longer able to properly house modern equipment or provide safe working conditions. Equipment stored outside in the weather deteriorates faster, costing taxpayers more in the long run.

Why not build on a different site?

The current site is located within the geographical center of the town, approximately two miles from any town border. This central location allows for quick response times to emergency and storm situations. Building elsewhere would reduce service efficiency and increase response times.

What are the main improvements?

The project includes: utilizing the former Police station for administrative offices, constructing a new 14,200 sq ft garage/shop to protect equipment and vehicles, constructing a new salt shed to replace the failing structure, and implementing proper stormwater management and site improvements.

Will services be interrupted during construction?

The project is designed to be completed in phases, allowing the Highway Department to maintain essential services throughout the construction process. Emergency response and regular maintenance will continue.

Have more questions?

Additional questions and detailed information will be available at upcoming informational forums, a Highway Department Open House, and the Town Hall meeting. All residents are welcome to attend and learn more about the project.

Learn More About This Project

Attend the Town Hall meeting to get all the details and ask questions

Back to Home